Podgląd oferty
Paweł Poćwiardowski |tel. 48 601 088 838 | email: [email protected]
| Numer oferty | NGK-MS-497 |
|---|---|
| miejscowość: | Szczecin |
| dzielnica - osiedle: | Śródmieście |
| cena ofertowa PLN: | 275 660 |
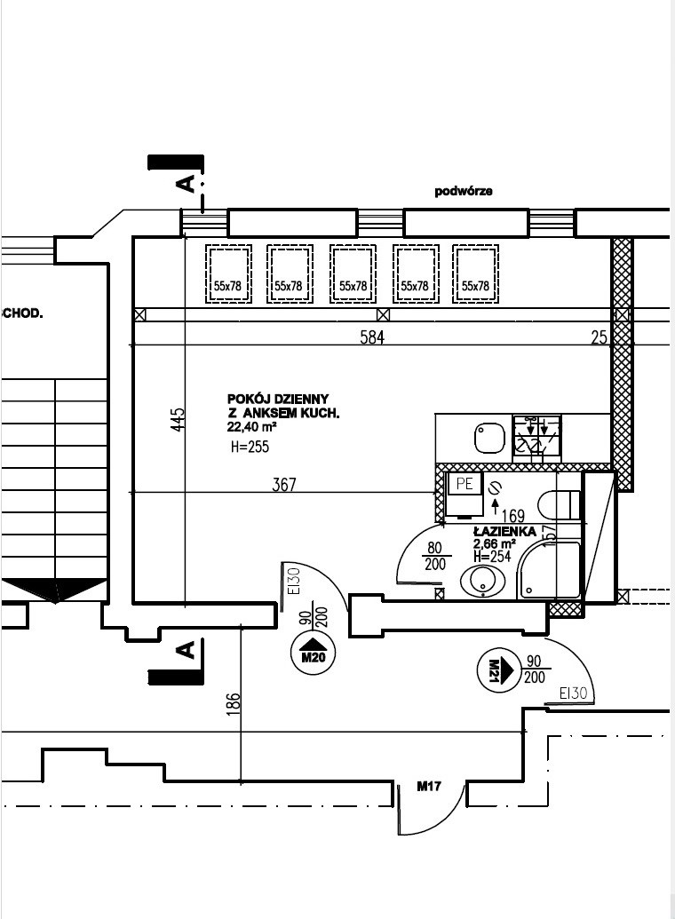
| pow. całkowita [m²]: | 25,0600 |
| cena ofertowa za 1 m2: | 11 000 |
| liczba pokoi: | 1 |
| rodzaj budynku: | kamienica |
| piętro: | 4 |
| ilość pięter: | 4 |
| forma własności: | Własność |
| standard: | ***** |
| ogrzewanie: | inne |
| źródło c.w.: | tak-podgrzewacz elektryczny |
| okna: | drewniane |
Do sprzedaży mieszkanie 1 pokojowe, z klimatyzacją, położone przy ul. Jagiellońskiej.Adaptacja poddasza:- pokój dzienny z aneksem kuchennym 22,40 m2,- łazienka 2,66 m2.Mieszkanie o jednostronnej - wschodniej ekspozycji okien. Powierzchnia użytkowa wg. dokumentacji projektowej to 25,06 m2.Lokal oddany będzie w standardzie deweloperskim z możliwością wykończenia lokalu pod klucz.Standard: podłogi - płyta OSB oraz płyta ognioodporna, ściany i sufity wygładzone ipomalowane na biało, rozprowadzone instalacje: elektryczna i wodno - kanalizacyjna. W kuchni i w łazience wyprowadzone, w zależności od projektu, wszystkie podłączenia pod zlewy, umywalki, wanny lub kabiny prysznicowe, pralki i płyty i piekarniki. Drzwi wejściowe antywłamaniowe, ognioodporne.Ogrzewanie i chłodzenie lokalu - klimatyzator, ciepła woda podgrzewacz elektryczny.Podana cena jest ceną brutto, zawiera podatek VAT - kupujący nie płaci 2 % podatku PCC.Polecam.Oferta biura nieruchomości.Wynagrodzenie biura pokrywa każda ze stron transakcji.Aktualny cennik znajduje się na stronie biura NG Nieruchomości w zakładce „o nas”.
Powyższa oferta nieruchomości stanowi charakter informacyjny oraz zaproszenie do rokowań zgodnie z Art. 71 KC i nie stanowi oferty określonej w art 66 i następnych KC.
